Facebook Youtube
CZ

Překlad (translations)

Městys Svitávka
Městys
Svitávka
rozšířené vyhledávání

Víceúčelový objekt Moravan Svitávka

Víceúčelový objekt Moravan Svitávka

Víceúčelový objekt Moravan Svitávka

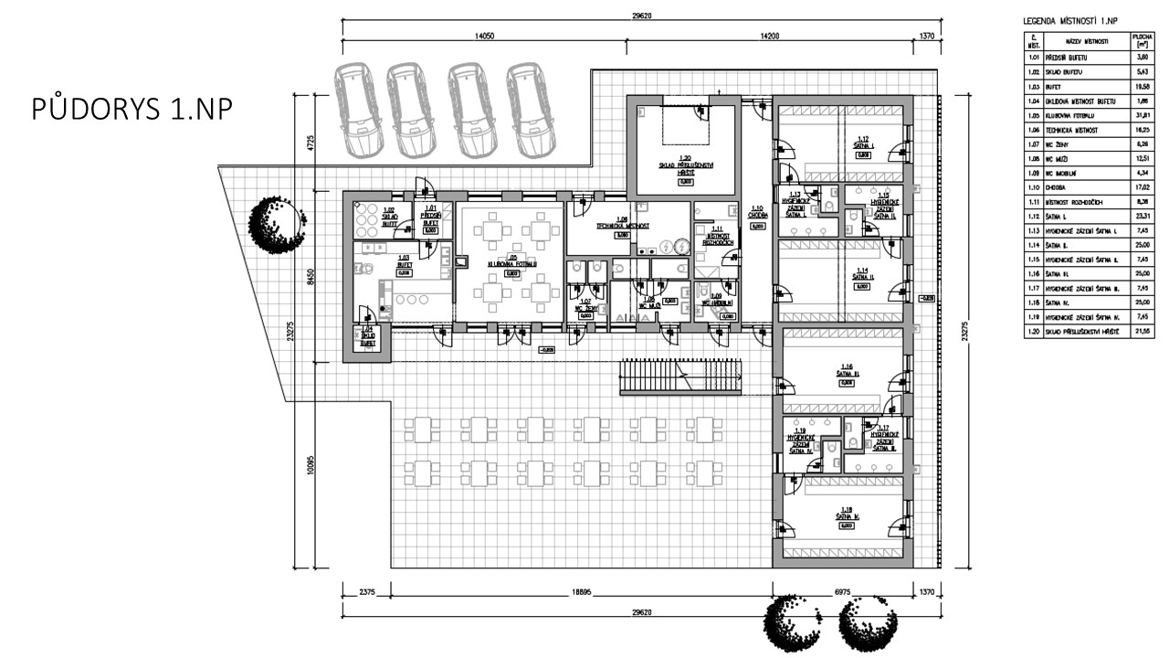
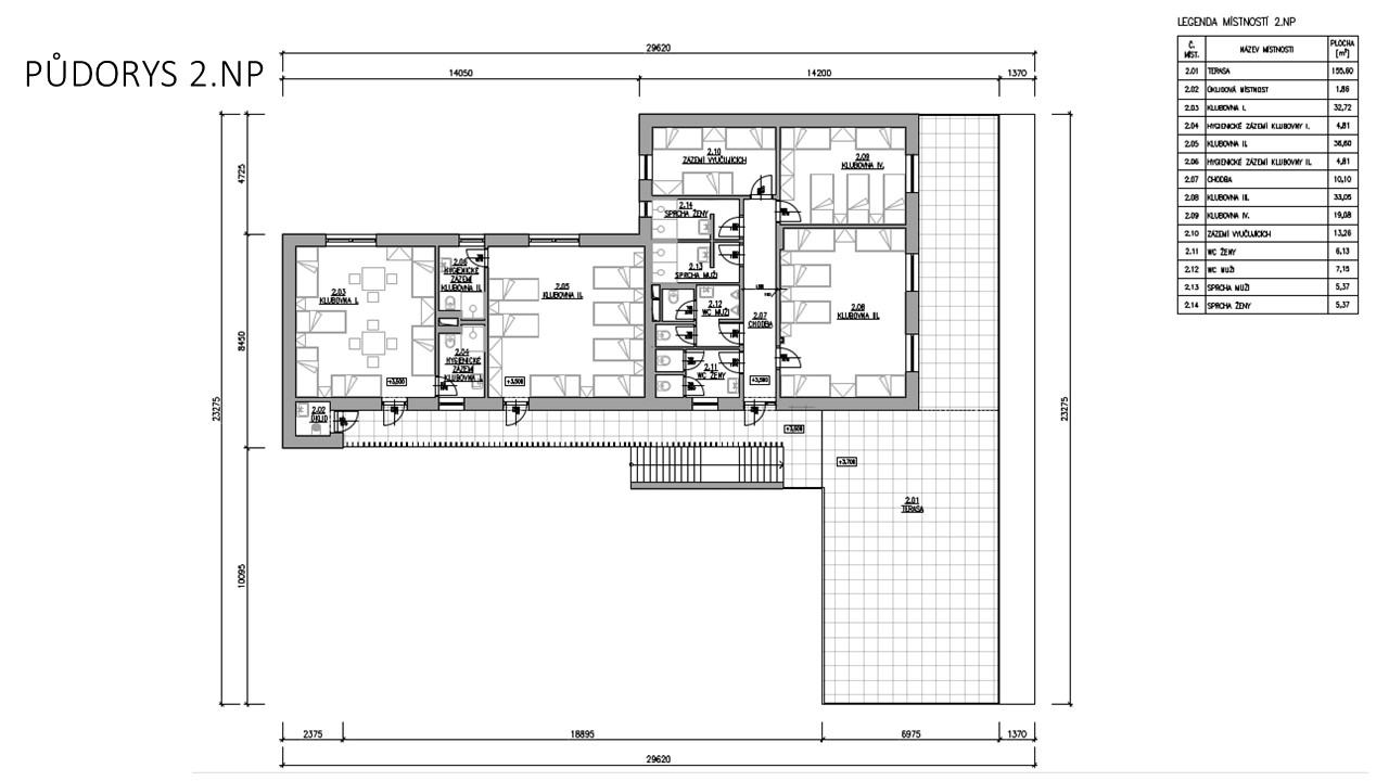
Ve středu 16. října proběhlo v Löw-Beerově vile představení projektu „Víceúčelový objekt Moravan Svitávka“, které vedl sám autor projektu. Představení projektu se zúčastnili zastupitelé, členové Komise pro rozvoj Svitávky, členové SK Moravan Svitávka a také občané, kteří vlastní nemovitosti v blízkosti plánované stavby. Stavba víceúčelové budovy je naplánována vedle multifunkčního hřiště, přes trávník naproti současnému zázemí sportovního areálu

Stavba má poskytnout čtyři samostatné šatny s potřebným sociálním zázemím. Dále technickou místnost pro techniku a prodej občerstvení. V horním patře by mělo vzniknout ubytování, které bude sloužit především sportovcům využívajícím sportovní halu během soustředění či turnajů, aby měli možnost zde přenocovat. Součástí projektu je také ochoz s přístupem pro fanoušky, kteří budou moci sledovat fotbalová utkání z výšky.

Přístup ke kabinám bude veden od hřiště, aby sportovci, kteří přijedou autem, mohli využívat parkoviště u sportovní haly. K příjezdu ke kabinám se tak nebude využívat ulice Švancarova.

Ve středu 16. října proběhlo v Löw-Beerově vile představení projektu „Víceúčelový objekt Moravan Svitávka“, které vedl sám autor projektu. Představení projektu se zúčastnili zastupitelé, členové Komise pro rozvoj Svitávky, členové SK Moravan Svitávka a také občané, kteří vlastní nemovitosti v blízkosti plánované stavby. Stavba víceúčelové budovy je naplánována vedle multifunkčního hřiště, přes trávník naproti současnému zázemí sportovního areálu

Stavba má poskytnout čtyři samostatné šatny s potřebným sociálním zázemím. Dále technickou místnost pro techniku a prodej občerstvení. V horním patře by mělo vzniknout ubytování, které bude sloužit především sportovcům využívajícím sportovní halu během soustředění či turnajů, aby měli možnost zde přenocovat. Součástí projektu je také ochoz s přístupem pro fanoušky, kteří budou moci sledovat fotbalová utkání z výšky.

Přístup ke kabinám bude veden od hřiště, aby sportovci, kteří přijedou autem, mohli využívat parkoviště u sportovní haly. K příjezdu ke kabinám se tak nebude využívat ulice Švancarova.

 

Datum vložení: 6. 11. 2024 7:43
Datum poslední aktualizace: 6. 11. 2024 7:47

Obec

Vývoz odpadů

Únor2026
Po Út St Čt So Ne
26 27 28
29 30 31 1
2 3 4 5 6 7 8
9 10
11
12 13 14 15
16 17 18 19 20 21 22
23 24 25
26 27 28 1
Kalendář svozu odpadu

Reklamace svozu

Nevyvezli vám popelnici?
Volejte  p. Hejlové
na tel: 736 682 992

Virtuální prohlídka

Virtuální prohlídka

Oči na stopkách

Posílejte MMS na číslo 733 745 334 v případě:

» nepořádku v obci
» vady na komunikacích
» špatného parkování
» když se po psech neuklidí

Doporučujeme

Moravský kras a okolí

Moravský kras a okolí

Mobilní aplikace

mobilní aplikace

Volně ke stažení:

google-play-download

app-store-download

Mobilní rozhlas

rozhlas